Zum Inhaltsbereich springen

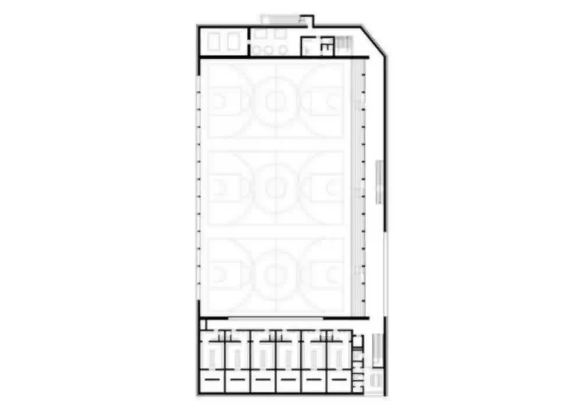
Dreifeldsporthalle

Die Schule Montreux Est liegt mitten im alten Ortskern von Montreux. Die bewegte Topographie gliedert das Schulareal in zwei Ebenen, auf deren oberem Niveau eine neue Sporthalle den baufälligen Bestandsbau ersetzen soll. Trotz seiner durch die Typologie gegebenen Grösse respektiert der Neubau die denkmalpflegerische Wertigkeit des Schulhauses sowie den Massstab der Umgebungsbebauung. Innerhalb des klar und einfach organisierten Gebäudes entstehen mittels geschickt gesetzter Öffnungen neue Spannungsfelder und Blickbezüge zur Umgebung. Die vorgeschlagene Fassade knüpft an die ortstypische Tradition der Holzverarbeitung an und stellt mit ihrer grafisch gekreuzten Lattung eine zeitgemässe Interpretation handwerklicher Ornamentik dar.

Ort

Montreux

Jahr

2019 – 22

Stand

Realisierung

Projekt

Dreifeldsporthalle

Auslober

Commune de Montreux

Verfasser

Translocal Architecture GmbH
mit Jordan architectes SA

Nächstes Projekt: Oberstufenschulhaus, Vernier | CH