Zum Inhaltsbereich springen

Campus Fachhochschule

Ort

Sion

Jahr

2013

Stand

7. Preis

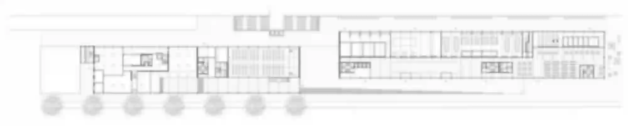
Projekt

Neubau Fakultätsgebäude und Städtebau

Auslober

Canton du Valais

Verfasser

Translocal Architecture GmbH

Nächstes Projekt: Wohnbebauung Calvaire, Lausanne | CH