Zum Inhaltsbereich springen

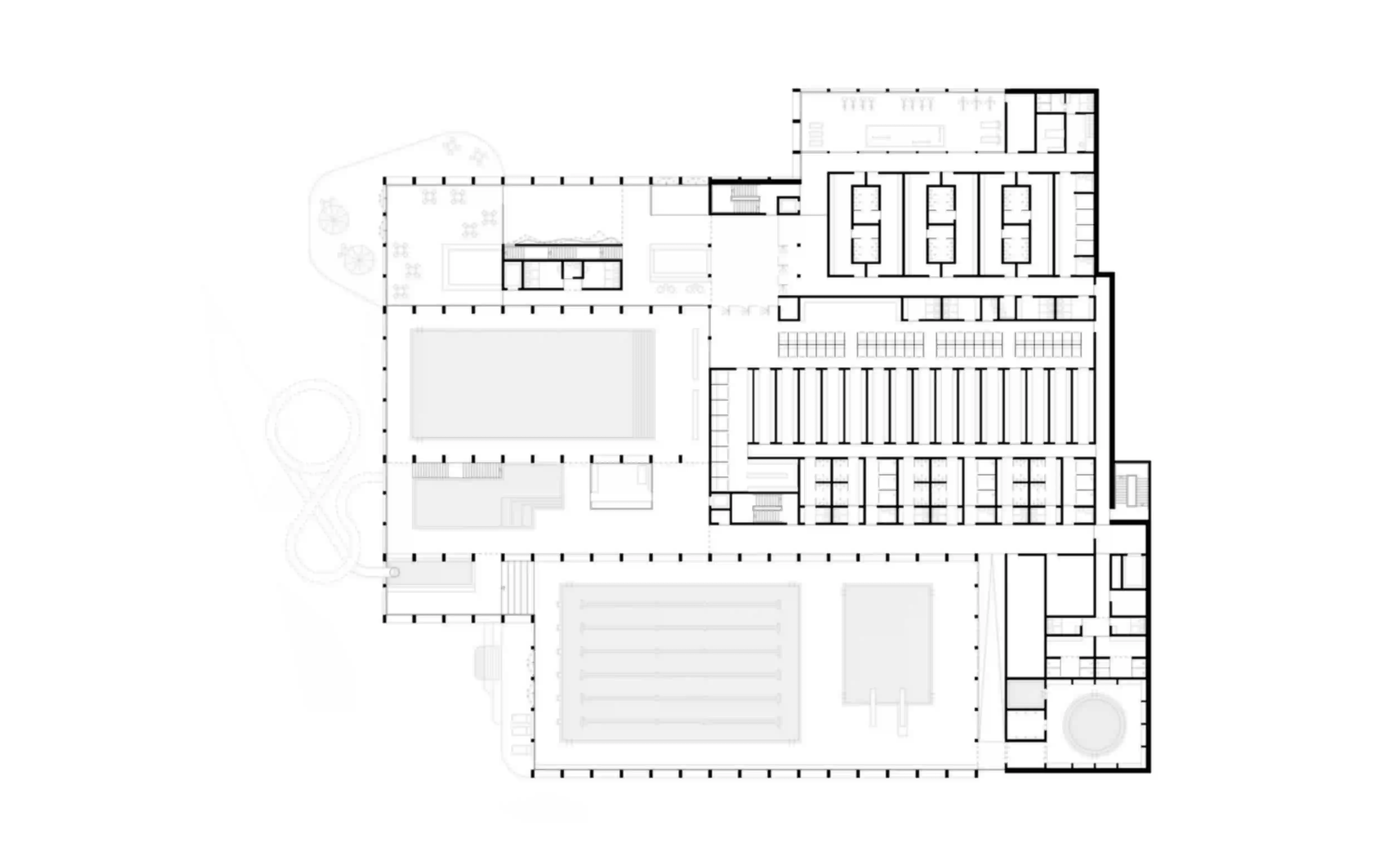
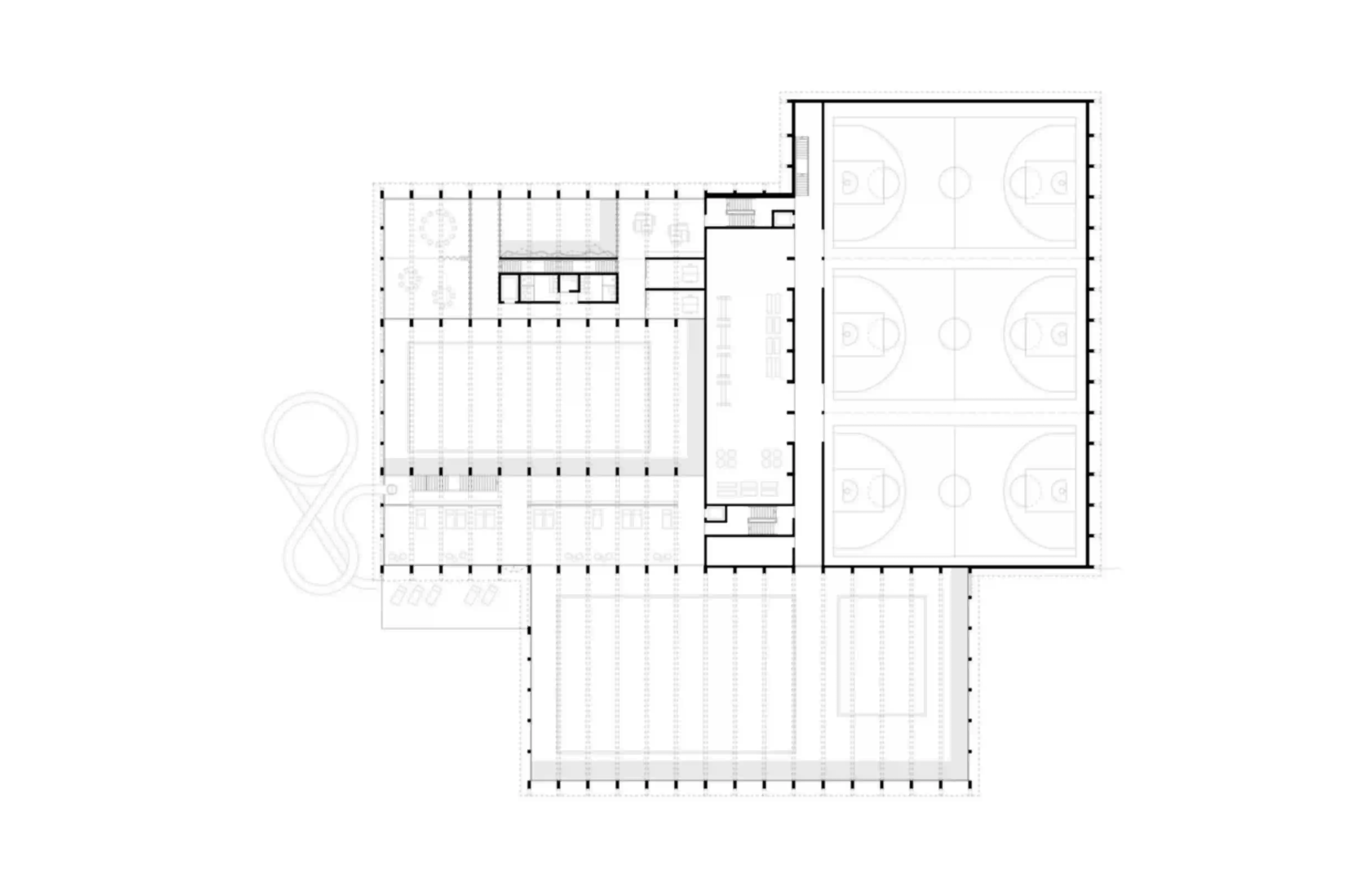
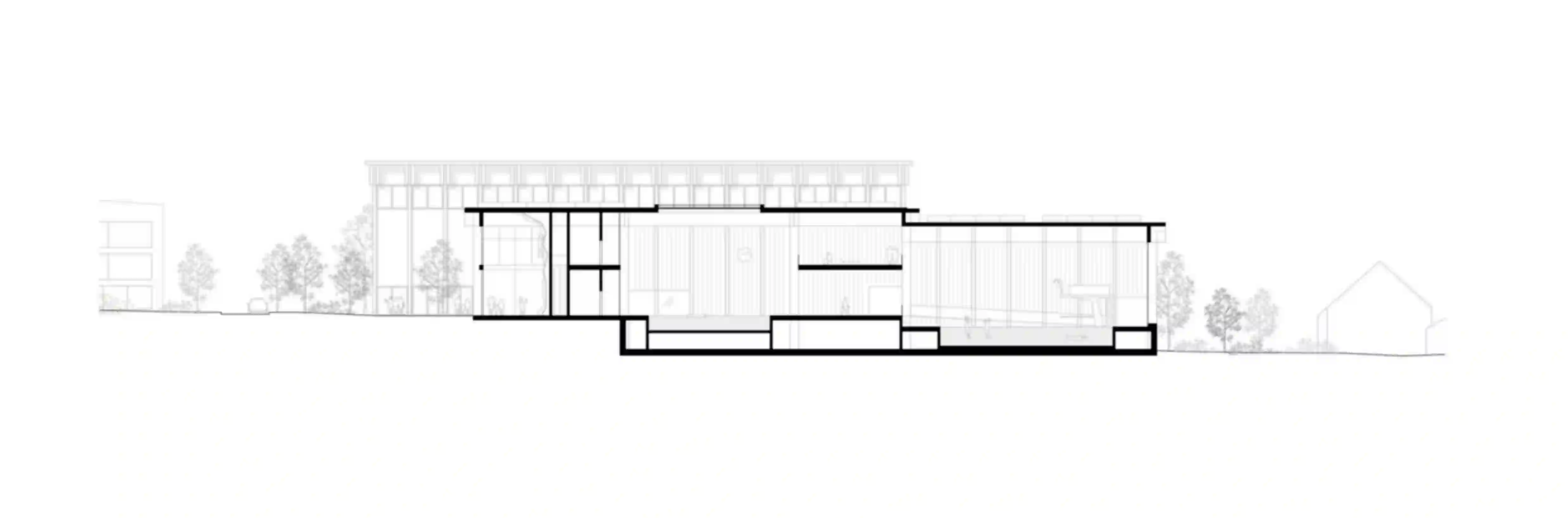
Sportzentrum

Ort

Châtel-St-Denis

Jahr

2025

Stand

5. Rang

Projekt

Dreifeldsporthalle und Schwimmzentrum

Auslober

Association des communes pour le cycle d’orientation de la Veveyse (ASSCOV)

Verfasser

Translocal Architecture GmbH

Nächstes Projekt: Altersheim Éclépens, Éclépens | CH