Zum Inhaltsbereich springen

Zweifeldsporthalle

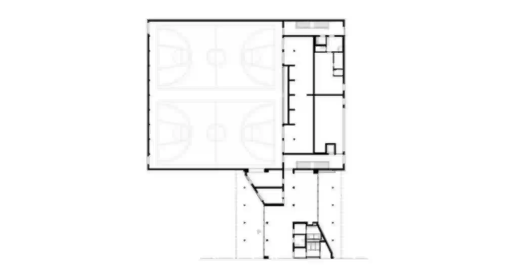
Der Neubau der Sporthalle Niederviehbach ersetzt die bisherige Einfeldhalle der Schule. Mit seiner Lage im Norden des mäandrierenden Schul- und Verwaltungsgebäudes steht die Halle als eigenständiger Baustein, dessen Erschliessung sich eng mit dem Bestand verknüpft. So erhalten Schule und Halle ein gemeinsames Foyer, welches die bisher voneinander getrennten Freiräume für die Ankunft Osten und den Pausenhof im Westen nunmehr transparent miteinander verbindet. Die Sporthalle selbst ist einfach organisert und kann durch ihren zweigeschossigen Nebentrakt kompakt in einem einfachen Volumen organisiert werden. Die Hülle präsentiert sich in strahlendem Gold, im Inneren dominieren helle Holztöne, gedeckte Farben und Sichtbeton.

Ort

Niederviehbach

Jahr

2014 – 18

Stand

1. Preis, realisiert

Projekt

Neubau Zweifeldsporthalle

Auslober

Gemeinde Niederviehbach

Verfasser

Translocal Architecture GmbH
mit r+b landschaftsarchitektur

Fotos

Rainer Taepper

Nächstes Projekt: Kinderhort, Radebeul | D