Zum Inhaltsbereich springen

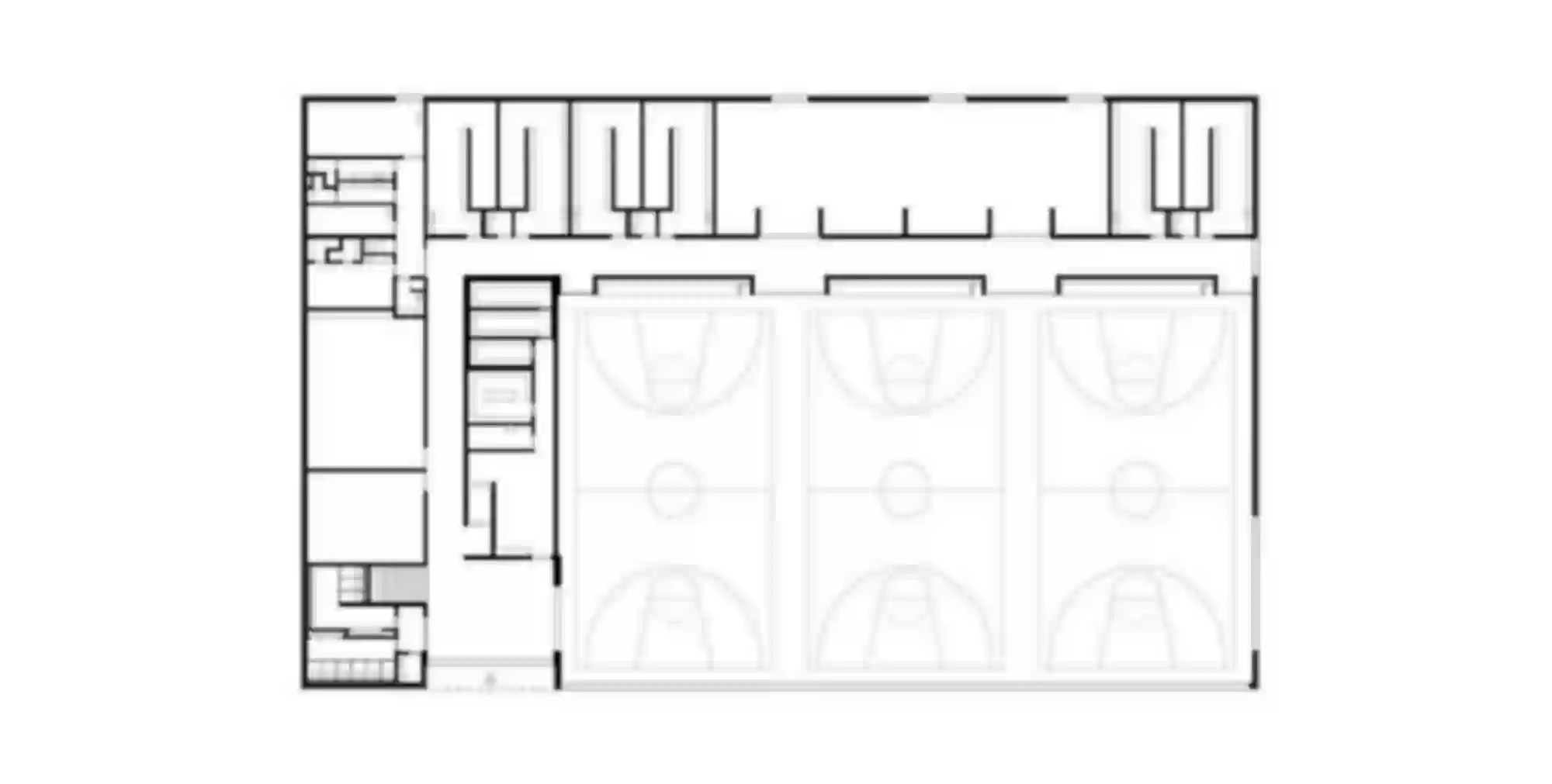
Dreifeldsporthalle

Der Ortsrand von Châtel-St-Denis verläuft sanft in die Landschaft, die geprägt ist von einzelnen Gehöften und weiträumigen Feldern und Wiesen. Hier befindet sich auch das Grundstück für den Neubau einer Dreifeldsporthalle, die für die umliegenden Gemeinden einen gemeinsamer Sport- und Veranstaltungsraum darstellt. Ausgehend von der baukörperlichen Einbettung des Neubaus in die hügelige Voralpenlandschaft erfolgte die Umsetzung der Halle als ortstypischer Holzbau. Sowohl in der Konstruktion als auch in den Oberflächen bestimmt das Material Holz die Erscheinung. Dabei gewinnt die Fassade durch die handwerkliche Bearbeitung der Aussenhaut eine indivduelle Präsenz, die sowohl vertraut im Material als auch überraschend im Detail ist und dem Neubau eine zurückhaltende Eigenständigkeit verleiht.

Ort

Châtel-Saint-Denis

Jahr

2006 – 09

Stand

1. Preis + Realisierung

Projekt

3-Feld-Sporthalle

Auslober

Association des communes de la Veveyse pour le CO,
Commune de Châtel St-Denis

Verfasser

Translocal Architecture GmbH
mit S. Virdis

Fotos

Thomas Jantscher

Nächstes Projekt: Sportzentrum, Châtel-St-Denis | CH