Zum Inhaltsbereich springen

Altersheim Fondation Clémence

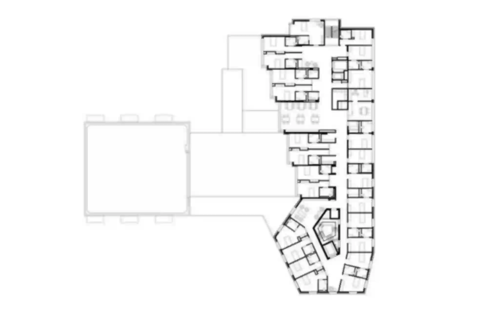
Das Altersheim liegt im Westen von Lausanne zwischen der Avenue de Morges im Süden und dem ruhiger gelegenen Chemin de Renens im Norden . Das Grundstück ist stark topographisch geprägt und fällt nach Süden um zwei Geschosse ab. Die Erweiterung erfolgt direkt an der stark befahrenen Avenue de Morges, wo ein polygonaler Kopfbau als achtgeschossiger Turm einen signifikanten Auftakt bildet und seitlich einen kleinen Quartiersplatz formuliert. Während die drei unteren Ebenen einen Sockel bilden und vor allem übergeordnete Nutzungen beherbergen, dienen die fünf Obergeschosse den Wohngruppen. Die Baustelle wurde in zwei Phasen realisiert: zunächst wurde der Neubau bei laufendem Betrieb zwischen zwei Bestandsbauten gesetzt, nach dem Umzug der 87 Bewohner in den Neubau konnten der Bestand und die Aussenanlagen saniert werden. Zusammen mit dem Neubau verbinden sich die Grundrisse jetzt zu luftigeren Einheiten, die sich entlang einer linearen Erschliessung immer wieder zum Aussenraum hin öffnen und Orte der Begegnung und des Austauschs für die nun 145 Bewohner schaffen.

Ort

Lausanne

Jahr

2014 – 23

Stand

1. Preis, in Bearbeitung

Projekt

Erweiterung Altenpflegeheim, Tageschule,
Betreutes Wohnen

Auslober

Fondation Clémence

Verfasser

Translocal Architecture GmbH

Nächstes Projekt: Campus Fachhochschule, Sion | CH