Zum Inhaltsbereich springen

Schulhaus Fondation Monneresse

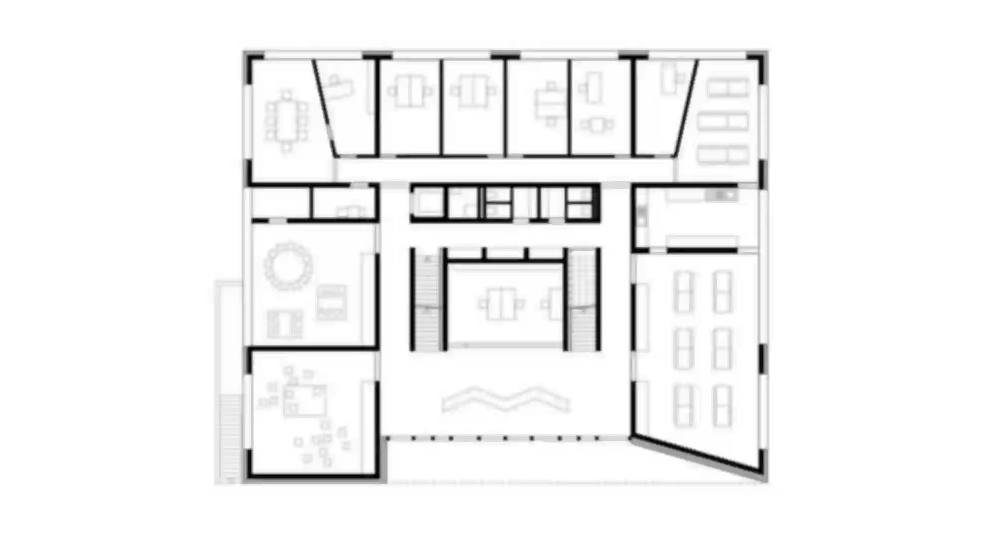
Der Neubau für die Fondation La Monneresse ist eine Förderschule für schwer erziehbare Kinder. Die Schule gliedert sich typologisch in zwei Teile – den Sockel mit übergeordneten Funktionen wie Verwaltung, Speiseraum und Eingangsbereich, und dem Klassentrakt im Obergeschoss. Man betritt das Gebäude zentral über ein Foyer mit Garderobe, von wo aus zwei Treppen zu den Unterrichtsbereichen führen. Dort umfassen je vier Klassen einen gemeinsamen Lerncluster. Die so entstehenden Raumeinheiten ermöglichen vielfältige Unterrichtskonfigurationen vom klassischen Frontalunterricht bis hin zu klassenübergreifendem Projektunterricht. Als Herzstück und von allen Klassenzimmern aus einsehbar lädt eine lichtdurchflutete Bibliothek zum Lesen und Stöbern ein. Eindeutiges Wiedererkennungszeichen des neuen Schulhauses ist sein mehrfach gefaltetes Dach. Gemeinsam mit einer klaren Materialisierung und Lichtführung verleiht es der Förderschule eine eigenständige Note.

Ort

Aigle

Jahr

2014 – 19

Stand

1. Preis, realisiert

Projekt

Neubau Schulhaus

Auslober

Fondation la Monneresse

Verfasser

Translocal Architecture GmbH

Fotos

Rainer Taepper, Marko Göhre

Nächstes Projekt: Zweifeldsporthalle, Niederviehbach | D